Opis ogłoszenia
Oferta budowy energooszczędnego Domu na Działce Klienta – 69 m²/ 86 m²/ 100 m² – Stan surowy/ deweloperski – cała POLSKA.
Zapraszamy do zapoznania się z naszą ofertą budowy domu parterowego o powierzchni 6986 m² w solidnej i trwałej technologii CLT (Cross Laminated Timber) – masywnych, wielkoformatowych płyt z drewna klejonego krzyżowo.
W ofercie wykonawcy znajdziesz kilka wariantów metrażowych domów parterowych, wszystkie o stabilnej konstrukcji, doskonałych parametrach izolacyjnych i nowoczesnym designie.
Wykonawca oferuje budowę kompleksowo – od fundamentu po stan deweloperski, zapewniając: gwarancję stałej ceny – bez niespodzianek w trakcie realizacji oraz gwarancję terminu.
Szukasz domu, który będzie jednocześnie solidny, ekologiczny, energooszczędny i gotowy w rekordowym czasie?
Poznaj naszą propozycję – domu parterowego na Twojej działce, z możliwością powiększenia o funkcjonalne poddasze.
Zdjęcia wnętrz przedstawiają dom pokazowy oraz wizualizacje i mają charakter poglądowy. Nie stanowią oferty w rozumieniu przepisów prawa.
Dostępne metraże: 69 m2, 86 m2, 100 m2 (parter + opcja poddasza).
Wykonawca dopuszcza na życzenie klienta możliwość zmian w układzie pomieszczeń oraz funkcji wnętrz.
Warianty realizacji:
Stan surowy
Zawiera: projekt + adaptacja, masywne ściany CLT, dach ceramiczny,
Opcje dodatkowe: okna trzyszybowe, drzwi zewnętrzne.
Stan deweloperski
Zawiera: projekt + adaptacja, masywne ściany CLT, dach ceramiczny, okna trzyszybowe, drzwi zewnętrzne, ocieplenie elewacji, tynki suche, posadzki cementowe, instalacje wodna i elektryczna, ogrzewanie podłogowe wodne, ocieplenie stropu, sufity podwieszane.
Opcje dodatkowe: poddasze, wykończenie elewacji w stylu klasycznym lub nowoczesnym, pompa ciepła / kocioł gazowy, rekuperacja, garaż, wykończenie pod klucz.
Stan „pod klucz”
Wyceniany jest indywidualnie, zgodnie z zakresem prac i oczekiwaniami Kupującego.
Czas realizacji: 3 miesiące – stan deweloperski.
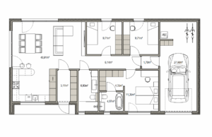
PARAMETRY DOMU MD69 - 69 m2
Wymiary: 10,6 8,2 m, dach 35-40
Powierzchnia użytkowa parteru - 69 m2
Salon z aneksem kuchennym - 32,17 m2
Pokój - 11,86 m2
Pokój - 11,40 m2
Łazienka - 5,39 m2
Przedpokój - 2,66 m2
Korytarz - 4,09 m2
Pomieszczenie gospodarcze - 1,90 m2.
Pakiet PODDASZE UŻYTKOWE (opcja dodatkowa) - 21,88 m2 (pokój 8,86 m2, pokój 8,89 m2; korytarz - 2,76 m2; garderoba - 1,37 m2).
Powierzchnia użytkowa parteru - 69 m2
Salon z aneksem kuchennym - 32,17 m2
Pokój - 11,86 m2
Pokój - 11,40 m2
Łazienka - 5,39 m2
Przedpokój - 2,66 m2
Korytarz - 4,09 m2
Pomieszczenie gospodarcze - 1,90 m2.
Pakiet PODDASZE UŻYTKOWE (opcja dodatkowa) - 21,88 m2 (pokój 8,86 m2, pokój 8,89 m2; korytarz - 2,76 m2; garderoba - 1,37 m2).
Stan surowy - 221 000 zł
Stan surowy z płytą fundamentową - 271 600 zł brutto
Stan deweloperski - 392 100 zł
Stan deweloperski z płytą fundamentową - 442 700 zł brutto.
---------------------------------------
Parametry domu M86 - 86 m2
Wymiary: 12,2 × 8,8 m, dach 35–40°
Powierzchnia użytkowa parteru – 86 m²
Salon z aneksem kuchennym – 45,17 m²
Pokój – 13,95 m²
Pokój – 11,40 m²
Łazienka – 6,40 m²
Przedpokój – 2,66 m²
Korytarz – 5,16 m²
Pomieszczenie gospodarcze – 1,90 m²
Pakiet PODDASZE UŻYTKOWE (opcja dodatkowa) +32,58 m²: 2 pokoje po 11,39 m² każdy; łazienka – 3,93 m²; Korytarz – 4,49 m²; garderoba – 1,38 m².
Stan surowy - 248 800 zł
Stan surowy z płytą fundamentową - 303 800 zł brutto
Stan deweloperski - 449 100 zł
Stan deweloperski z płytą fundamentową - 504 000 zł brutto.
--------------------------------------
PARAMETRY DOMU MD100 - 100 m2
Wymiary: 14,00 x 8,8 m, dach 35-40
Powierzchnia użytkowa parteru - 100 m2
Salon z aneksem kuchennym - 41,01 m2
Pokój - 9,71 m2
Pokój - 9,71 m2
Pokój - 11,72 m2 + garderoba 4,32 m2 + łazienka 4,07 m2
Łazienka - 6,40 m2
Przedpokój - 6,07 m2
Korytarz - 5,16 m2
Pomieszczenie gospodarcze - 1,85 m2.
Pakiet PODDASZE UŻYTKOWE (opcja dodatkowa) - 38,17 m2 (2 pokoje 14,15 m2 każdy, łazienka 3,93 m2, korytarz -5,05 m2; garderoba - 0,88 m2).
Stan surowy - 285 600 zł
Stan surowy z płytą fundamentową - 348 900 zł brutto
Stan deweloperski - 512 000 zł
Stan deweloperski z płytą fundamentową - 575 300 zł brutto.
-------------------------------------
W cenie transport i montaż budynku na terenie całego Legnicko-Głogowskiego Okręgu Miedziowego. Pozostałe lokalizacje wyceniane są dodatkowo i indywidualnie.
Fundament może przygotować inwestor lub za dodatkową opłatą zlecić realizację wykonawcy domu.
Na życzenie Klienta, prześlemy szczegółową wycenę kosztów dodatkowych, takich jak: montaż pompy ciepła, instalacja rekuperacji, wykończenie elewacji, realizacja pakietu poddasze oraz budowa garażu w bryle budynku.
Dla zainteresowanych Klientów – na zlecenie wyszukamy działkę w dogodnej lokalizacji!
Bezpieczeństwo i gwarancje:
- Umowa z gwarancją ceny podpisywana u notariusza.
- 30 lat gwarancji na konstrukcję ścian.
- 3 lata gwarancji na prace budowlane.
Dlaczego warto?
✅ 100% pozytywnych opinii Wykonawcy w Google – potwierdzona jakość i rzetelność.
✅ Stała cena i termin realizacji – zero niespodzianek!
✅ Technologia CLT – masywne płyty z drewna klejonego krzyżowo gwarantują trwałość, odporność ogniową, komfort cieplny i akustyczny oraz niższe koszty ogrzewania.
✅ Ekologia – naturalny materiał, tylko 0,6% ekologicznego kleju.
Technologia przyszłości – CLT (Cross Laminated Timber)
Budując w technologii masywnego drewna CLT, otrzymujesz znacznie więcej niż tylko trwałą konstrukcję i przyjazny środowisku materiał. CLT to także ponadprzeciętna odporność ogniowa, spełniająca najbardziej rygorystyczne normy na świecie – w tym te obowiązujące w Australii.
Drewno CLT dorównuje stalowym konstrukcjom pod względem odporności na ogień, dlatego wykorzystywane jest do wznoszenia obiektów o wysokich wymaganiach bezpieczeństwa, takich jak przedszkola, szkoły czy szpitale.
Ściany – zarówno zewnętrzne, jak i wewnętrzne – to monolityczne elementy z jednego kawałka drewna, łączonego jedynie z 0,6% ekologicznego kleju. Dzięki temu:
- wytrzymują duże obciążenia i naprężenia w wielu kierunkach,
- są odporne na ogień,
- zapewniają znakomitą izolację termiczną i akustyczną,
- naturalnie regulują poziom wilgotności, tworząc komfortowy klimat w każdym sezonie.
W dobie rosnących cen energii, energooszczędność staje się kluczowa. Domy CLT charakteryzują się wysoką zdolnością akumulacji ciepła, a w połączeniu z materiałem izolacyjnym gwarantują niski koszt ogrzewania i doskonałą ciszę wewnątrz budynku.
Kupujący nie płaci prowizji ani kosztów notarialnych.
Odwiedź dom pokazowy w okolicy Lubina i poczuj klimat nowoczesnego, ekologicznego budownictwa!
📞 Zadzwoń już dziś: 786 802 813, lubin.wgn.pl
WGN Lubin Nieruchomości – ul. Bema 1 (CH Srebrna Promenada)
Wszystkie prezentacje nieruchomości odbywają się w obecności Agenta odpowiedzialnego za ofertę lub za jego pośrednictwem.
Dla zapewnienia bezpieczeństwa i zgodnie z obowiązującymi procedurami, osoby uczestniczące w prezentacji proszone są o podanie imienia, nazwiska oraz numeru telefonu, a także o podpisanie potwierdzenia odbycia prezentacji wraz ze wskazaniem prezentowanego adresu.
Więcej ofert na stronie: www.wgn.pl
WGN zapewnia rynkowe ceny, bezpieczeństwo korzystnej transakcji oraz pomoc notariusza.
Oferujemy kompleksową obsługę kredytową przy zakupie tej oraz innych nieruchomości.
Wyróżniamy się pełnym zaangażowaniem, ekspercką wiedzą i najwyższym poziomem usług opartym na 34-letnim doświadczeniu. Stosujemy System Jakości ZJ WGN oraz Kodeks Etyki Zawodowej Polskiej Federacji Rynku Nieruchomości.
Informacje dotyczące nieruchomości zostały sporządzone na podstawie oświadczeń i nie są ofertą w rozumieniu przepisów prawa, mają charakter wyłącznie informacyjny i mogą podlegać aktualizacji, zalecamy ich osobistą weryfikację.
Podstawowe informacje
- Lokalizacja: Chojnów - cała POLSKA
- Cena: od 221 000 zł
- Rodzaj: dom wolnostojący
- Rynek: pierwotny
- Powierzchnia: 69 m2/ 86 m2/ 100 m2
- Ilość pokoi: 3-6
- Ilość kondygnacji: 2
- Rok budowy: 2025
- Stan techniczny: surowy/ deweloperski
- Działka: Klienta
Dodatkowe informacje
Oferujemy:
- pomoc w znalezieniu działki
- obsługę kredytową przy zakupie tej oraz innych nieruchomości.








































